площадью 605,13 м2, по цене 90769500 по адресу деревня Спас-Каменка - Спас-Каменка кп,1

Цена 90 769 500 р.
Адрес деревня Спас-Каменка, Спас-Каменка кп,1
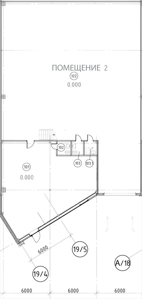
Площадь помещения 605,13 м2
Продаётся новое помещение Light Industrial в промышленном парке INDUSTRIAL CITY ""КЛЮЧ"". Северное направление, всего в 4 км от Дмитровского шоссе и в 30 км от МКАД. Координаты: 56.148996, 37.449949 Продажа осуществляется напрямую от собственника парка, что исключает комиссии и скрытые платежи. Инфраструктура и коммуникации: Класс: А Электричество: 25 кВт (возможно увеличение мощности) Вентиляция: приточно-вытяжная Водоснабжение, канализация Индивидуальные приборы учета Высокоскоростной интернет Бесплатная парковка: 6 мест для автомобилей. Доступ: 24/7, охраняемая территория, видеонаблюдение. Дополнительно: - Собственная профессиональная управляющая компания - Клининг - Консьерж-сервис - Мобильное приложение - Маркетплейс услуг - Кафе на территории - Зоны отдыха и спортивные площадки Обращайтесь по телефону в объявлении, готовы предоставить подробную информацию!
Объявление № 23457643
Дата подачи:
22 октября 2025 г. 4:45
Дата обновления:
22 октября 2025 г. 4:00
Просмотров 9 Хотите продать быстрее?

Продавец
Отдел продаж
Показать номер телефона
Пожаловаться
Комментарии:
Добавить